TE_négyzet

testnevelési egyetem b08, könyvtár

Építész tervező: Archinest Kft. – Vincze Krisztián, Dési Gyula

Belsőépítész tervező: Tarján Andrea

Funkció: könyvtár műemlék épületben

Munka jellege: átalakítás

Helyszín: Budapest

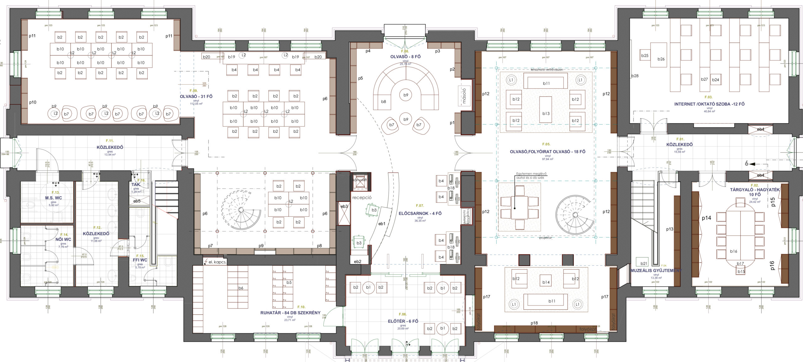
Terület: 710 m2

Tervezés éve: 2018-2019

Státusz: megépült

Az egyetem központi épületének átépítése során a B08 épület bontásra volt ítélve és a központi épület tervezésénél az épülettel nem is számoltak. A „K” épület építés ideje alatt született az örökségvédelmi döntés, hogy az épületet meg kell tartani. A programterv szerint az egyetemi könyvtár kerül itt elhelyezésre, ennek belsőépítészeti tervezése volt a feladatom. Az épület földszintjén az egyetemi könyvtár közönségforgalmi terei, szabadpolcos könyvespolcok, olvasótermek, folyóirat olvasó, oktatóterem, tárgyaló-hagyatéki szoba kerül kialakításra. A tetőtér és a földszint között könyvlift segítségével tudják küldeni fogadni a recepción dolgozók a könyveket. A könyvtárba belépve egy nagy belmagasságú, világos térbe érünk. Az információs pult fekete-narancs színe, egyszerű íves vonalvezetése, a világos burkolatok modern fogadóteret alkotnak. A bejárati rész, és a tőle balra eső olvasó terek világos fa burkolatúak, világos natúr színű szabad polcokkal, semleges szürke színű meleg, de nagy kopásállóságú vinyl burkolattal. A világos fa asztalok, a szürke-narancs székek kényelmes, esztétikus teret biztosítanak a könyvtár közönségének. A kialakított galéria acél szerkezetű, fa járófelülettel. A galériára betervezett 4 fiatalos, hatalmas fotel lehetőséget biztosít a nyugodt olvasásra. A bejárati előcsarnoktól jobbra eső olvasó hagyományos kialakítású tér, mintha egy időutazásban venne részt az olvasó. A bútorok sötét dió színűek, kényelmes sötét ülőgarnitúrák, mívesen kialakított acél szerkezetű galéria, hagyományos megjelenésű design lámpák biztosítják a „más típusú” hangulatot. Az álmennyezetek tervezésénél figyelembe kellett venni a galéria és a nagy összefüggő terek változó belmagasságát, a gépészeti berendezések helyigényét. Az álmennyezeti síkok különböző magasságúak, a monolit részekbe kazettás álmennyezeti szakaszok kerültek, így biztosítottuk, hogy a gépészeti berendezésekhez hozzá lehessen férni.